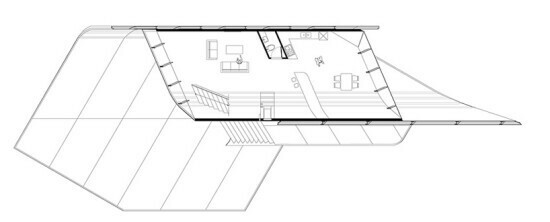
To προκατασκευασμένο κτίριο που φέρει την ονομασία «California Roll House», δημιούργημα της κορεάτικης Violent Volumes, χρησιμοποιεί την τελευταία τεχνολογία και τις πιο σύγχρονες πρακτικές μηχανικής για να δημιουργήσει την αίσθηση μιας άνετης ατμόσφαιρας σε ένα ερημικό περιβάλλον.
Το ακανόνιστο σχήμα του κτιρίου ενισχύεται από περίβλημα άνθρακα, δημιουργώντας έναν ελαφρύ αλλά ισχυρό σκελετό, πάνω στον οποίο συνδέεται ένα συμπαγές εξωτερικό κέλυφος, ώστε να αντανακλώνται οι ηλιακές ακτίνες. Τα τζάμια μετατρέπονται αυτόματα από διαφανή σε αδιαφανή κατά τη διάρκεια του εικοσιτετραώρου, για να απορροφούν τη νυχτερινή ψύχρα και να ανακλούν την έντονη ημερήσια ηλιοφάνεια.




[via]
σχόλια