Το σπίτι που κρέμεται από ένα γκρεμό της Αυστραλίας

Το σπίτι που κρέμεται από ένα γκρεμό της Αυστραλίας Facebook Twitter
0

Η αρχιτεκτονική ομάδα Modscape από την Αυστραλία εμπνεύστηκε την ιδέα από τον τρόπο με τον οποίο οι πεταλίδες κολλάνε πάνω στα βράχια και στα ύφαλα των πλοίων και σχεδίασε ένα σπίτι με απαράμιλλη θέα στον ωκεανό και πλήρως ακατάλληλο για όσους έχουν υψοφοβία. 

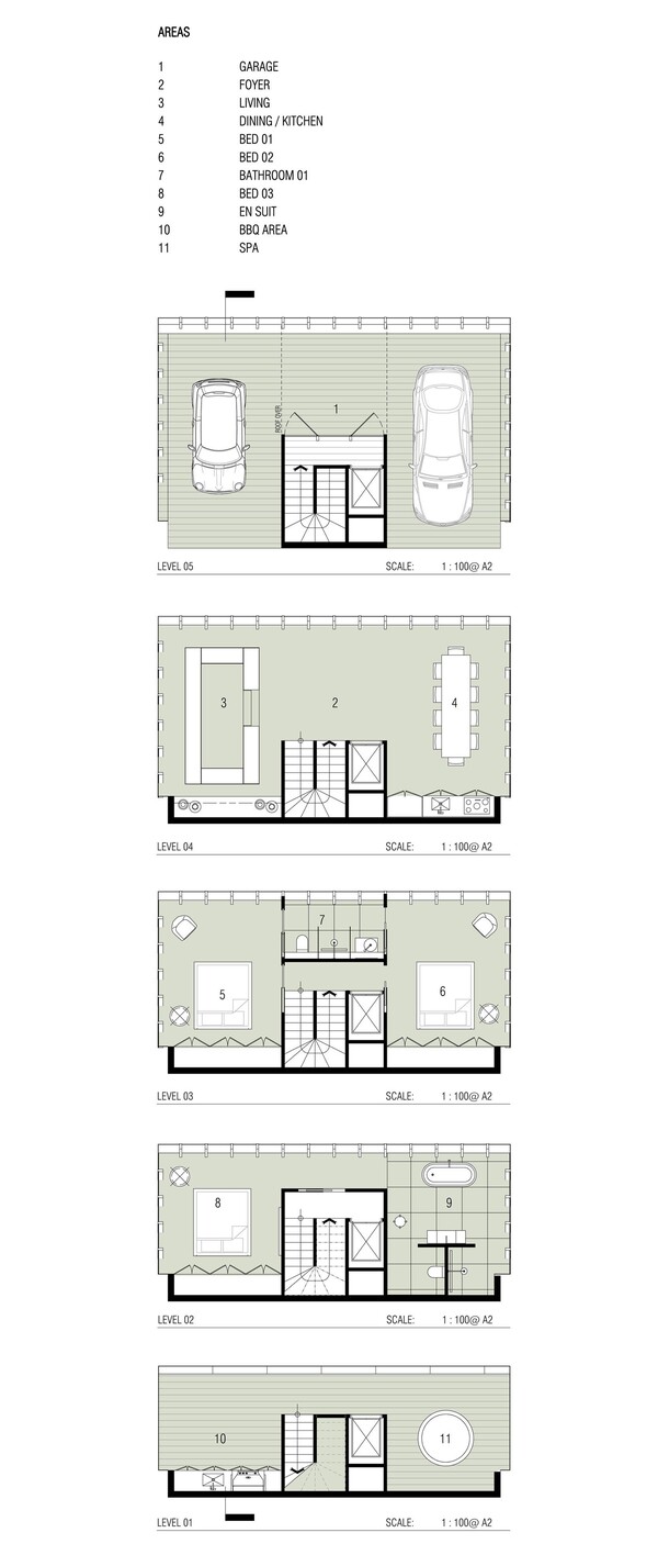
Το σπίτι είναι καρφωμένο στον γκρεμό με ατσάλινα στηρίγματα και φαίνεται σαν φυσική προέκτασή του. Στο πάνω μέρος του έχει μία προεξοχή, που λειτουργεί ως χώρος στάθμευσης για δύο αυτοκίνητα, και εκεί υπάρχει σκάλα και ασανσέρ για κατέβει κανείς στους τέσσερις ορόφους του σπιτιού.

Στο εσωτερικό, έχει δοθεί έμφαση στα τεράστια παράθυρα με την πανοραμική, συγκλονιστική θέα προς τον ωκεανό και η διακόσμηση είναι διακριτική, μινιμαλιστική, με μικρά έπιπλα. 

Το σπίτι που κρέμεται από ένα γκρεμό της Αυστραλίας Facebook Twitter
Το σπίτι που κρέμεται από ένα γκρεμό της Αυστραλίας Facebook Twitter

Το project ανατέθηκε στην εταιρεία από ένα ζευγάρι που ήθελε ένα σπίτι για τις διακοπές τους στη νοτιοδυτική ακτή της Victoria, στην Αυστραλία. Μόλις ασφαλιστεί, θα είναι το πρώτο σπίτι τέτοιου είδους. 

Το σχέδιο του σπιτιού:

Το σπίτι που κρέμεται από ένα γκρεμό της Αυστραλίας Facebook Twitter
Το σπίτι που κρέμεται από ένα γκρεμό της Αυστραλίας Facebook Twitter
0

ΔΕΙΤΕ ΑΚΟΜΑ

Όχι άλλο κάρβουνο: Αφήστε το αναρχικό άστρο να λάμπει στην πλατεία Εξαρχείων και καλές γιορτές

Δ. Πολιτάκης / Όχι άλλο κάρβουνο: Αφήστε το αναρχικό άστρο να λάμπει στην πλατεία Εξαρχείων και καλές γιορτές

Μπορεί να έχει άμεση ανάγκη κάποιου είδους ανάπλασης η Πλατεία Εξαρχείων, το τελευταίο που χρειάζεται όμως είναι ένα μίζερο χριστουγεννιάτικο δέντρο με το ζόρι.
ΔΗΜΗΤΡΗΣ ΠΟΛΙΤΑΚΗΣ
Δεκαετία του 2010: Δέκα χρόνια που στην Ελλάδα ισοδυναμούν με αιώνες

Β. Βαμβακάς / Δεκαετία του 2010: Δέκα χρόνια που στην Ελλάδα ισοδυναμούν με αιώνες

Οποιοσδήποτε απολογισμός της είναι καταδικασμένος στη μερικότητα, αφού έχουν συμβεί άπειρα γεγονότα που στιγμάτισαν τις ζωές όλων μας ‒ δύσκολο να μπουν σε μια αντικειμενική σειρά.
ΤΟΥ ΒΑΣΙΛΗ ΒΑΜΒΑΚΑ
Τα χρόνια των μετακινήσεων και η κουβέντα για το brain drain που δεν μου αρέσει καθόλου

Β. Στεργίου / Τα χρόνια των μετακινήσεων και η κουβέντα για το brain drain που δεν μου αρέσει καθόλου

Αντί να βλέπουμε τη χώρα σαν άδεια πισίνα όπου πρέπει να γυρίσουν τα ξενιτεμένα της μυαλά για να γεμίσει, ας αλλάξουμε τα κολλημένα μυαλά σ' αυτόν εδώ και σε άλλους τόπους.
ΤΗΣ ΒΙΒΙΑΝ ΣΤΕΡΓΙΟΥ